Reference

Kompletní rekonstrukce bytu 2+KK

V roce 2020 vznikl architektonický návrh pro celkovou rekonstrukci bytu se změnou dispozice. Koncept převážně obsahoval dekor dubu, alpskou bílou, beton a černé doplňky.

Co bylo cílem?

PROVEDENÍ REALIZACE

Rekonstrukce na klíč

TYP SLUŽBY

Rekonstrukce bytu

DATUM REALIZACE

20.11.2020

ORIENTAČNÍ CENA

115 000 Kč

Cílem rekonstrukce

Kompletně vybourat celý byt, znovu vytvořit moderní a útulný domov je zcela jasné.

Zvětšit obývací pokoj, vnést více světla do vstupní chodby a vytvořit technickou místnost pro pračku a další věci.

Mezi hlavními požadavky také bylo zbavit se velkých přiznaných trubek od topného systému.


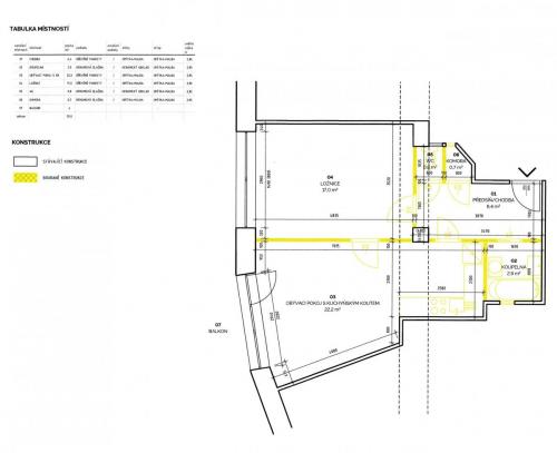
V jakém stavu jsme byt převzali


Návrh provedení rekonstrukce


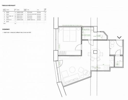
3D vizualizace nového interiéru


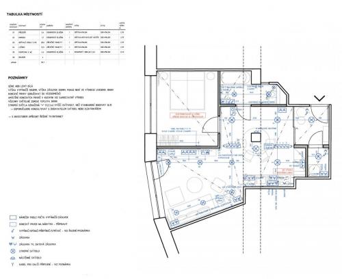
Průběh celkové realizace


Předání hotového díla klientovi


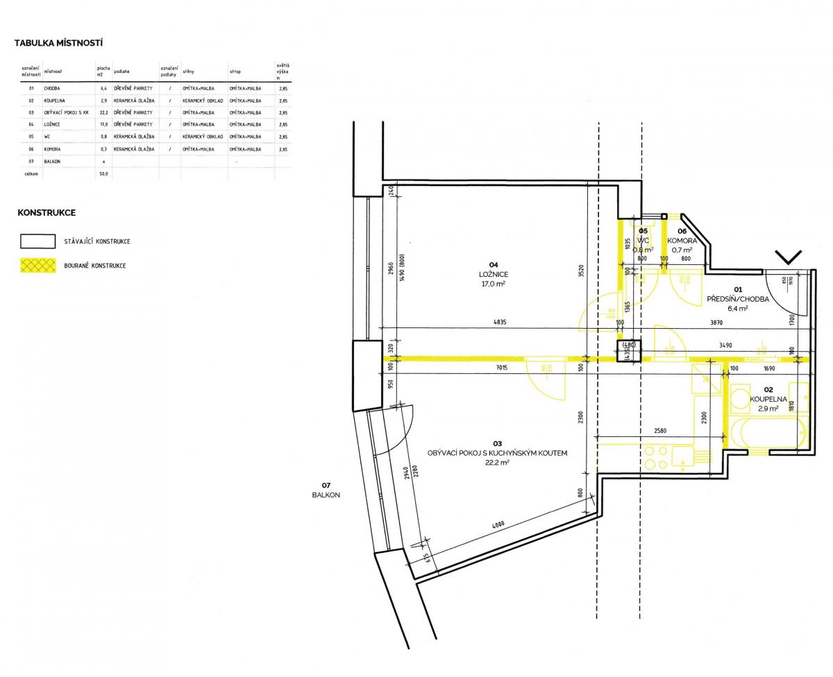
Jaký byl rozsah této rekonstrukce?

Návrh realizace

  • Prováděcí dokumentace
  • 3D vizualizace
  • Návštěva showroomů
  • Výběr materiálů

Stavební úpravy

  • Kompletní vybourání bytu
  • Zdění příček z materiálu Ytong
  • Vodoinstalace (odpady, teplá a studená voda)
  • Sádrokartonové stropy a tepelná izolace
  • Omítky a štuk
  • Vyrovnání a oprava podlahového “roštu”
  • Nová skladba podlahy z OSB desek

Rozvody

  • Elektroinstalace (silnoproud, slaboproud)
  • Úprava odběrného místa (elektroměr)
  • Topný systém (rozvody, radiátory, napojení na dům)
  • Zrušení plynu v bytě
  • Vodoinstalace (odpady, teplá a studená voda)

Realizace interiéru

  • Obkladačské práce
  • Ambientní led osvětlení na dálkové ovládání
  • Designové stěrky
  • Bezfalcové interiérové dveře a zárubně
  • Bezpečnostní vchodové dveře
  • Vinylové podlahy

Výroba nábytku na míru

  • Kuchyňská linka
  • Vestavěná skříň
  • Věšák
  • TV skříňka
  • Skříňka nad WC

Doplňkové služby

  • Elektrické exteriérové žaluzie
  • Výměna oken a balkonových dveří
  • Výroba skleněných posuvných dveří

„Firmu ATP stav jsme vybírali podle referencí a byla to ta nejlepší volba. Milí zaměstnanci od vedení až po řemeslníky, kvalitní práce a rekordní rychlost provedení rekontrukce. Nezbývá než poděkovat a doporučit !!“

Hodnocení reference: 10x (4/5)

Hledáte spolehlivou firmu na rekonstrukci bytu?

Zavolejte nám, nebo napište